flatscraper - logo
Za Južnou
Za Južnou - map
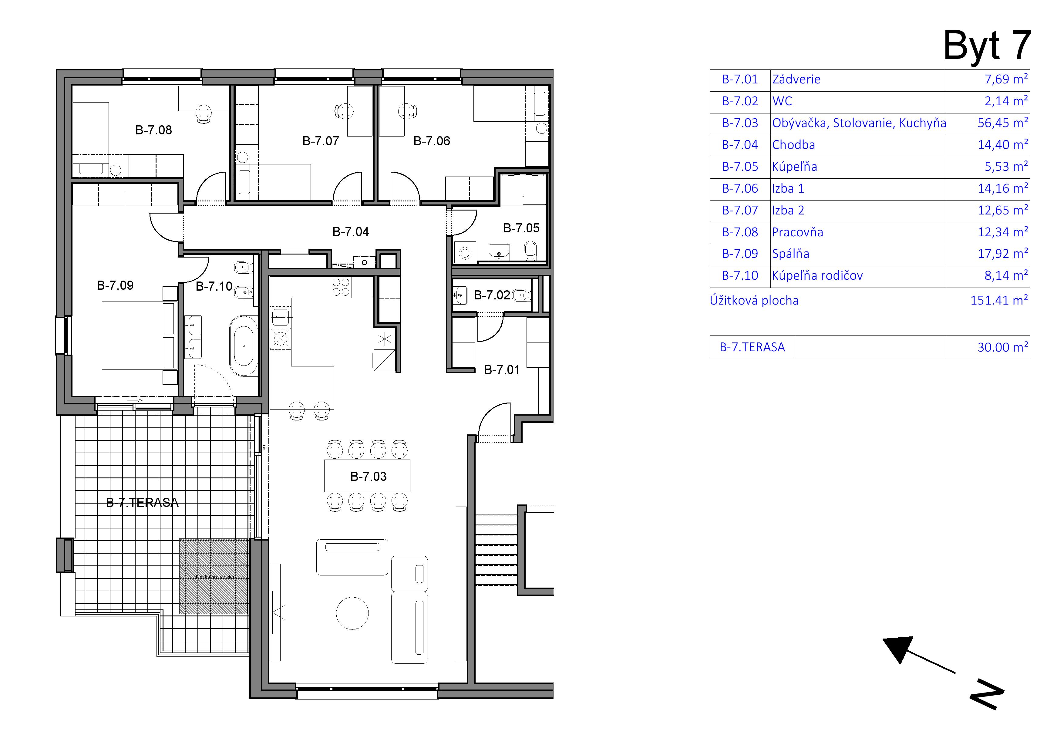
byt:
7
Projekt:
Mesto / Obec:
Typ:
5-izbový byt
Poschodie:
4.NP
Rozloha:
151.41 m²
Terasa:
30 m²
Cena:
454 000 €
Dostupnosť:
voľný
Kontakt:
Za Južnou - 7 - Pôdorys
zdroj: https://zajuznou.sk/byty/byt-7