flatscraper - logo
Pod Zábrehom II
Pod Zábrehom II - map
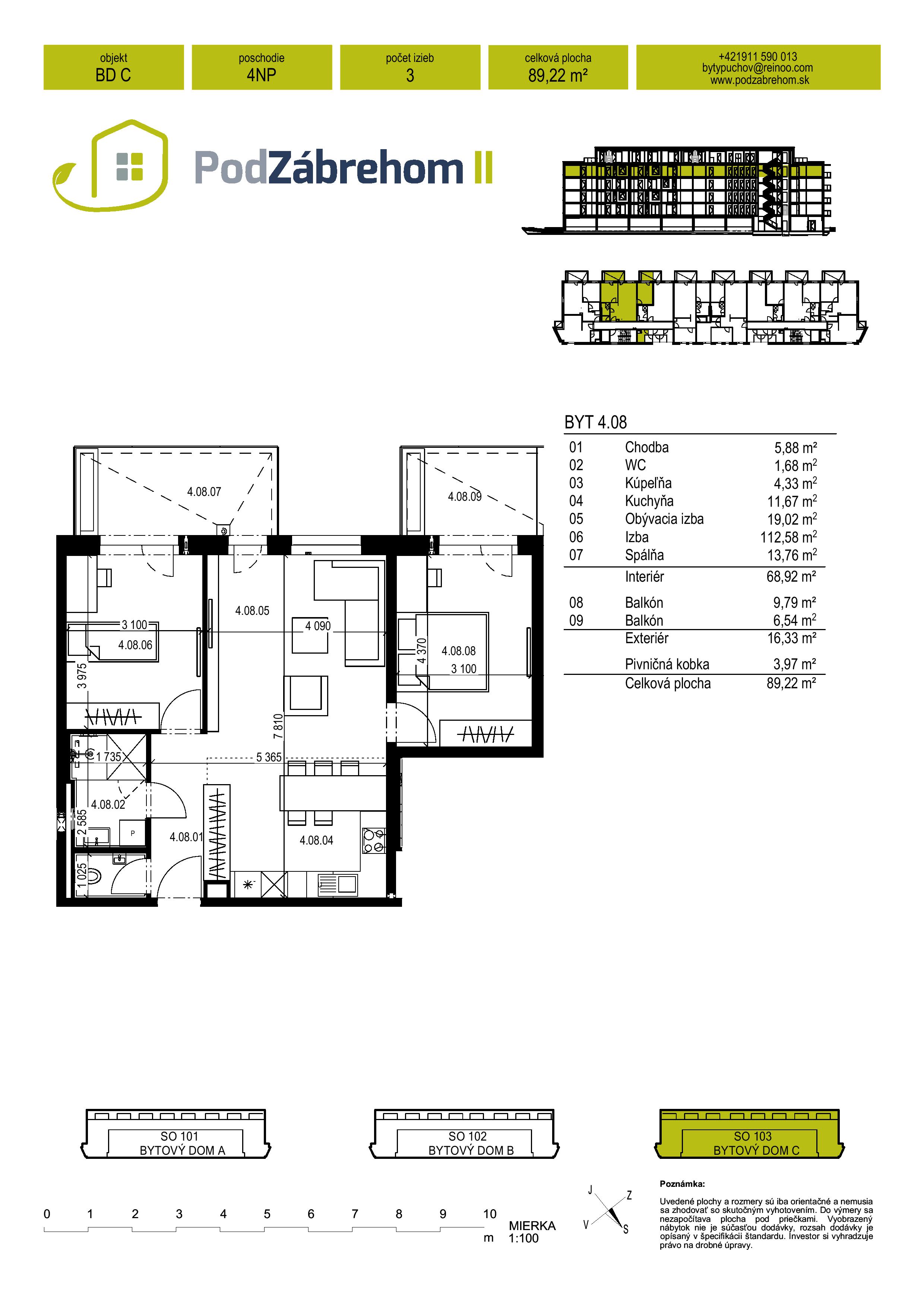
byt:
Projekt:
Mesto / Obec:
Typ:
3-izbový byt
Poschodie:
4.NP
Rozloha:
68.9 m²
Exteriér:
16.3 m²
Cena:
222 900 €
Dostupnosť:
voľný
Pod Zábrehom II - C4.08 - Pôdorys
zdroj: https://www.podzabrehom.sk/byty/C/4/08