flatscraper - logo
Luna Residence
Luna Residence - map
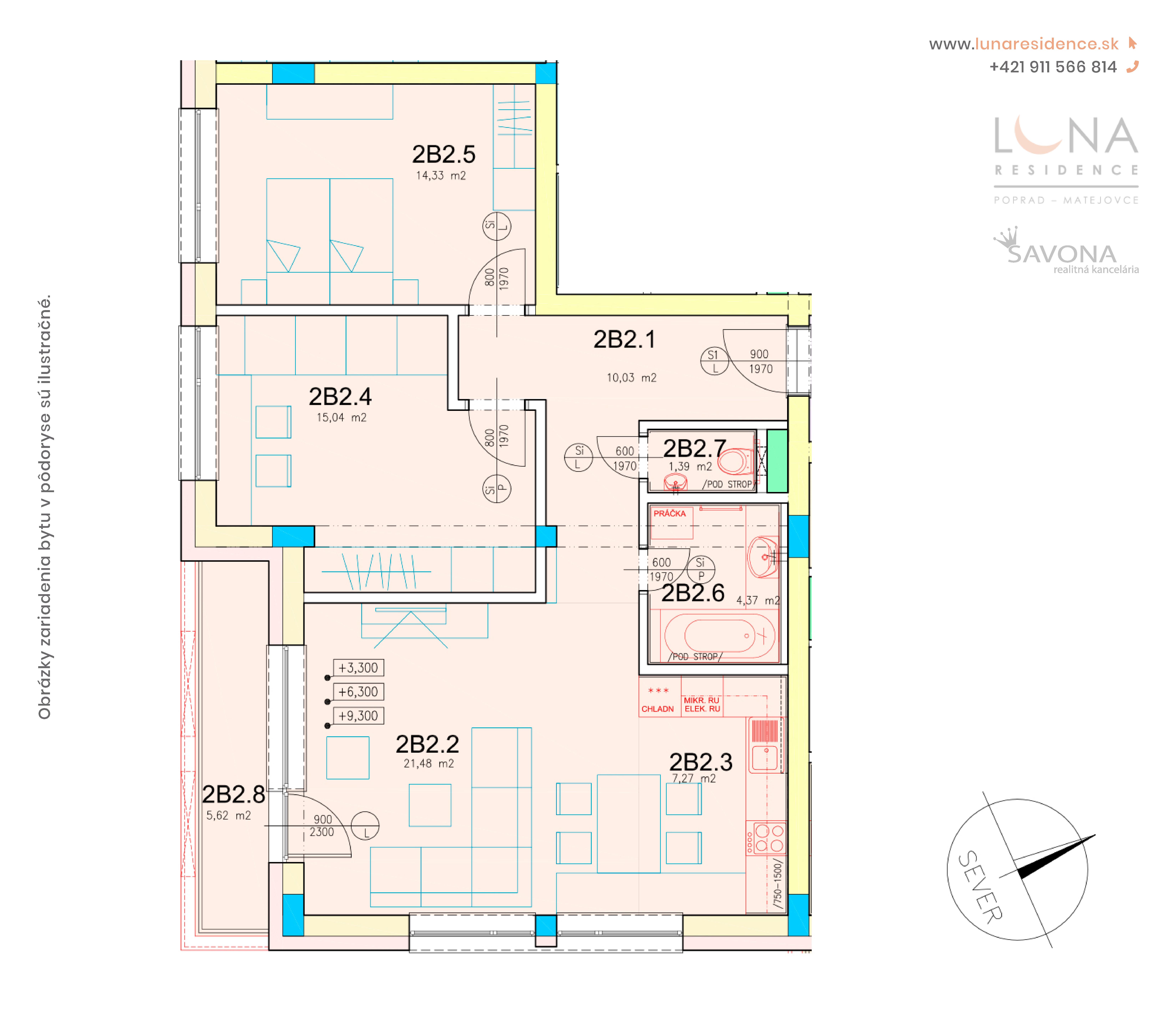
byt:
Budova:
B
Projekt:
Mesto / Obec:
Typ:
3-izbový byt
Poschodie:
3.NP
Rozloha:
73.91 m²
Exteriér:
5.62 m²
Cena:
188 315 €
Dostupnosť:
voľný
Luna Residence - 3B 02 - Pôdorys
zdroj: https://lunaresidence.sk/projekt/bytovy-dom-b/byt-b02-3-np/