flatscraper - logo
Karpatská Residence
Karpatská Residence - map
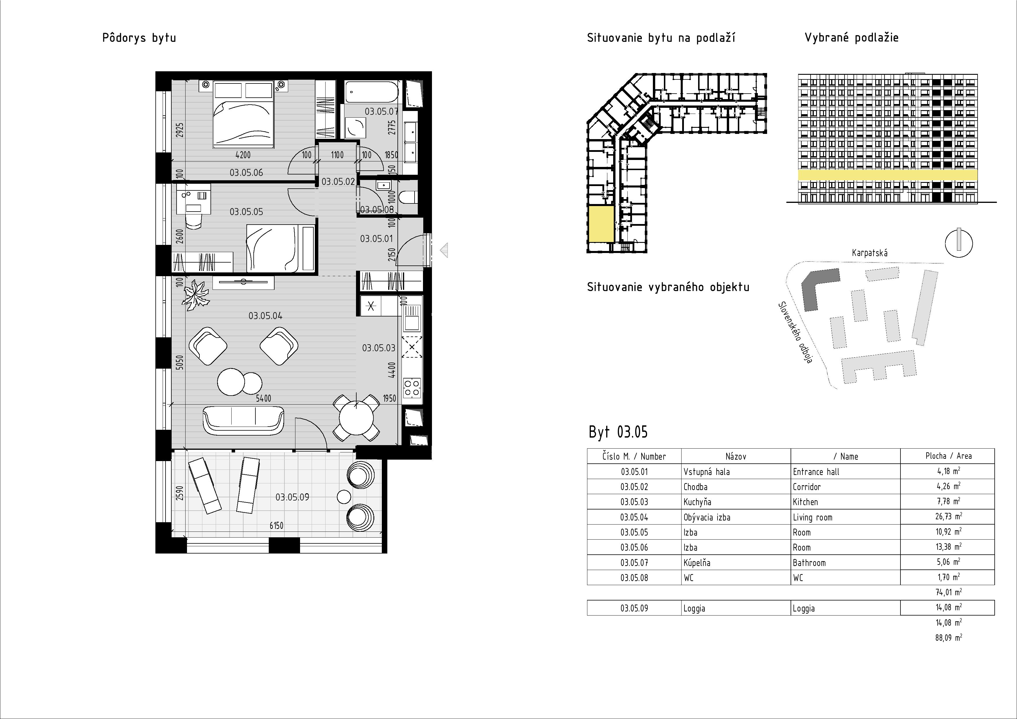
byt:
Mesto / Obec:
Typ:
3-izbový byt
Poschodie:
3.NP
Rozloha:
74.01 m²
Balkón:
14.08 m²
Cena:
-
Dostupnosť:
voľný
Karpatská Residence - 3.05 - Pôdorys
zdroj: https://www.karpatskaresidence.sk/byt_detail.php?id=3.05