flatscraper - logo
Bell Residence
Bell Residence - map
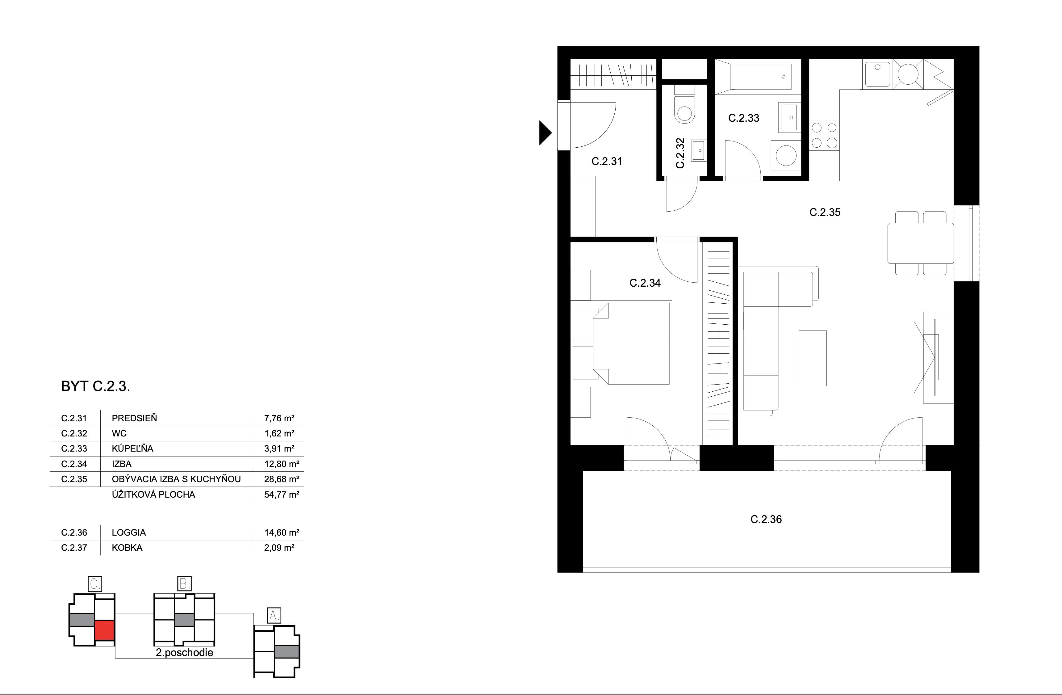
byt:
Budova:
C
Projekt:
Mesto / Obec:
Typ:
2-izbový byt
Poschodie:
2.NP
Rozloha:
54.77 m²
Cena:
204 575 €
Dostupnosť:
voľný
Bell Residence - C.2.3 - Pôdorys
zdroj: https://bellresidence.sk/byt?flat=C-2-3