flatscraper - logo
Bell Residence
Bell Residence - map
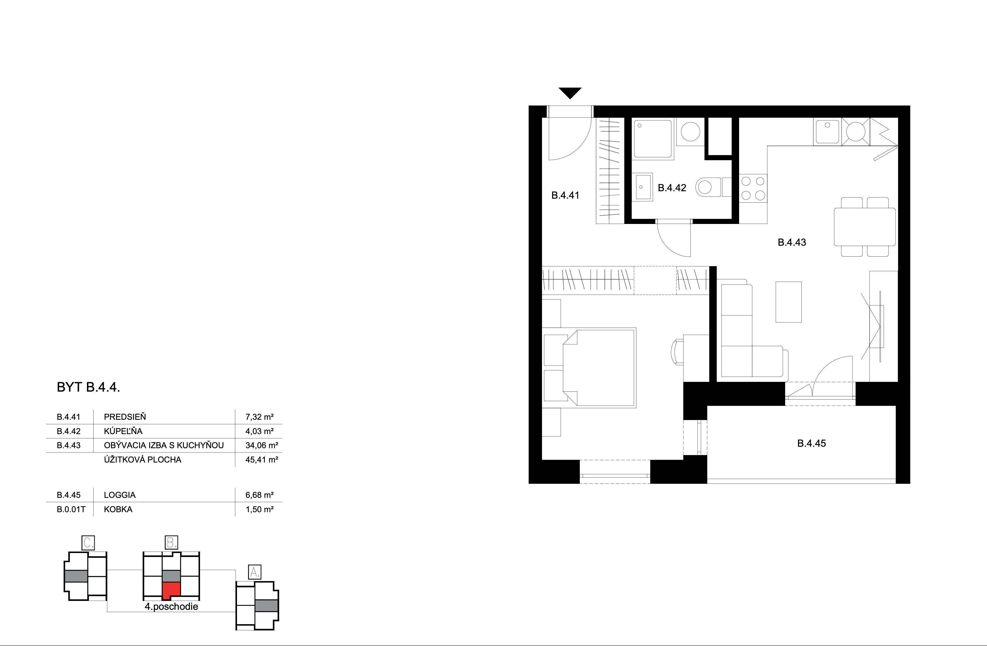
byt:
Budova:
B
Projekt:
Mesto / Obec:
Typ:
1-izbový byt
Poschodie:
4.NP
Rozloha:
45.41 m²
Cena:
162 282 €
Dostupnosť:
voľný
Bell Residence - B.4.4 - Pôdorys
zdroj: https://bellresidence.sk/byt?flat=B-4-4