flatscraper - logo
Bell Residence
Bell Residence - map
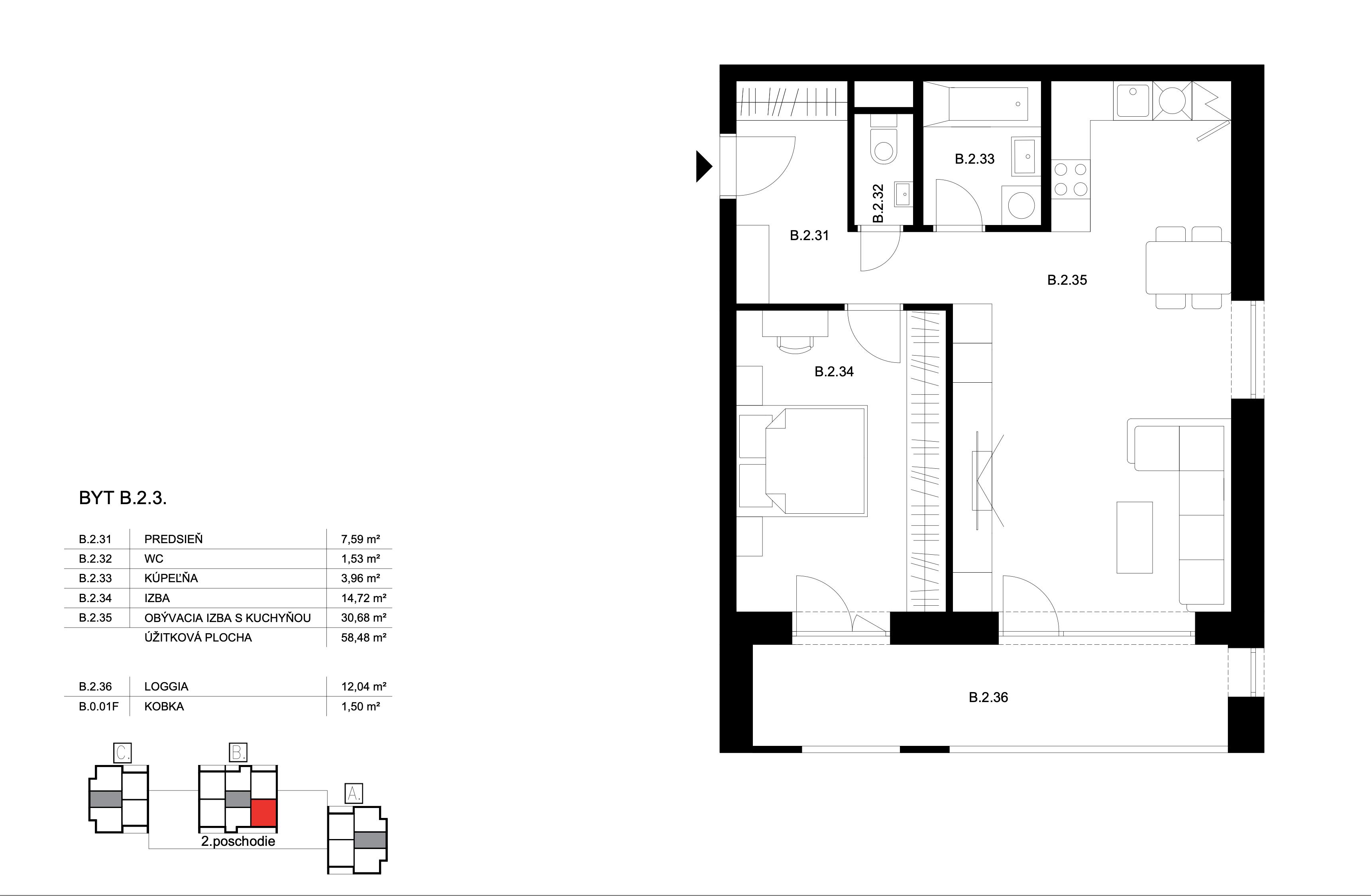
byt:
Budova:
B
Projekt:
Mesto / Obec:
Typ:
2-izbový byt
Poschodie:
2.NP
Rozloha:
58.48 m²
Cena:
213 727 €
Dostupnosť:
voľný
Bell Residence - B.2.3 - Pôdorys
zdroj: https://bellresidence.sk/byt?flat=B-2-3