flatscraper - logo
Bell Residence
Bell Residence - map
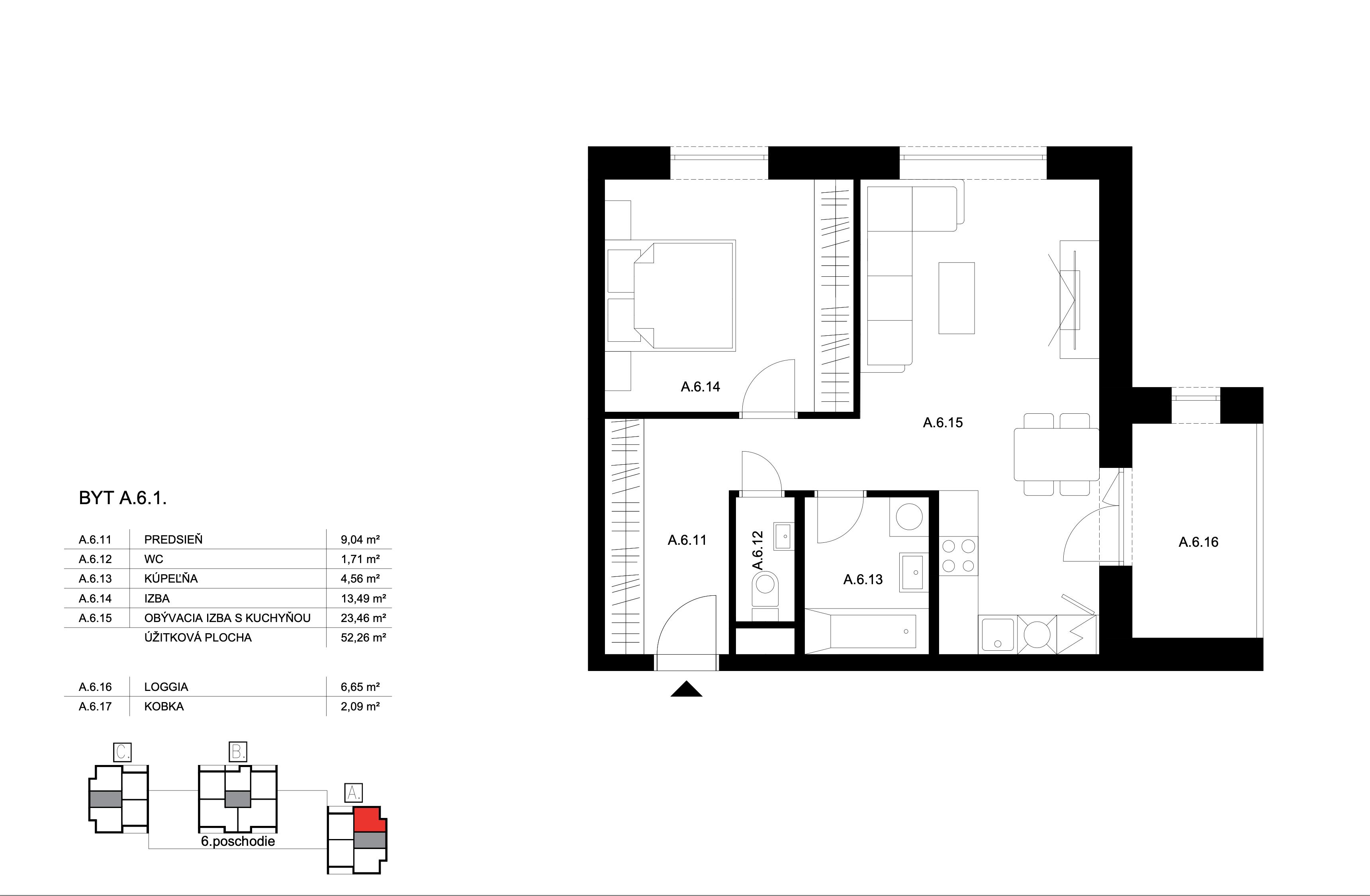
byt:
Budova:
A
Projekt:
Mesto / Obec:
Typ:
2-izbový byt
Poschodie:
6.NP
Rozloha:
52.26 m²
Cena:
186 097 €
Dostupnosť:
voľný
Bell Residence - A.6.1 - Pôdorys
zdroj: https://bellresidence.sk/byt?flat=A-6-1