flatscraper - logo
Bell Residence
Bell Residence - map
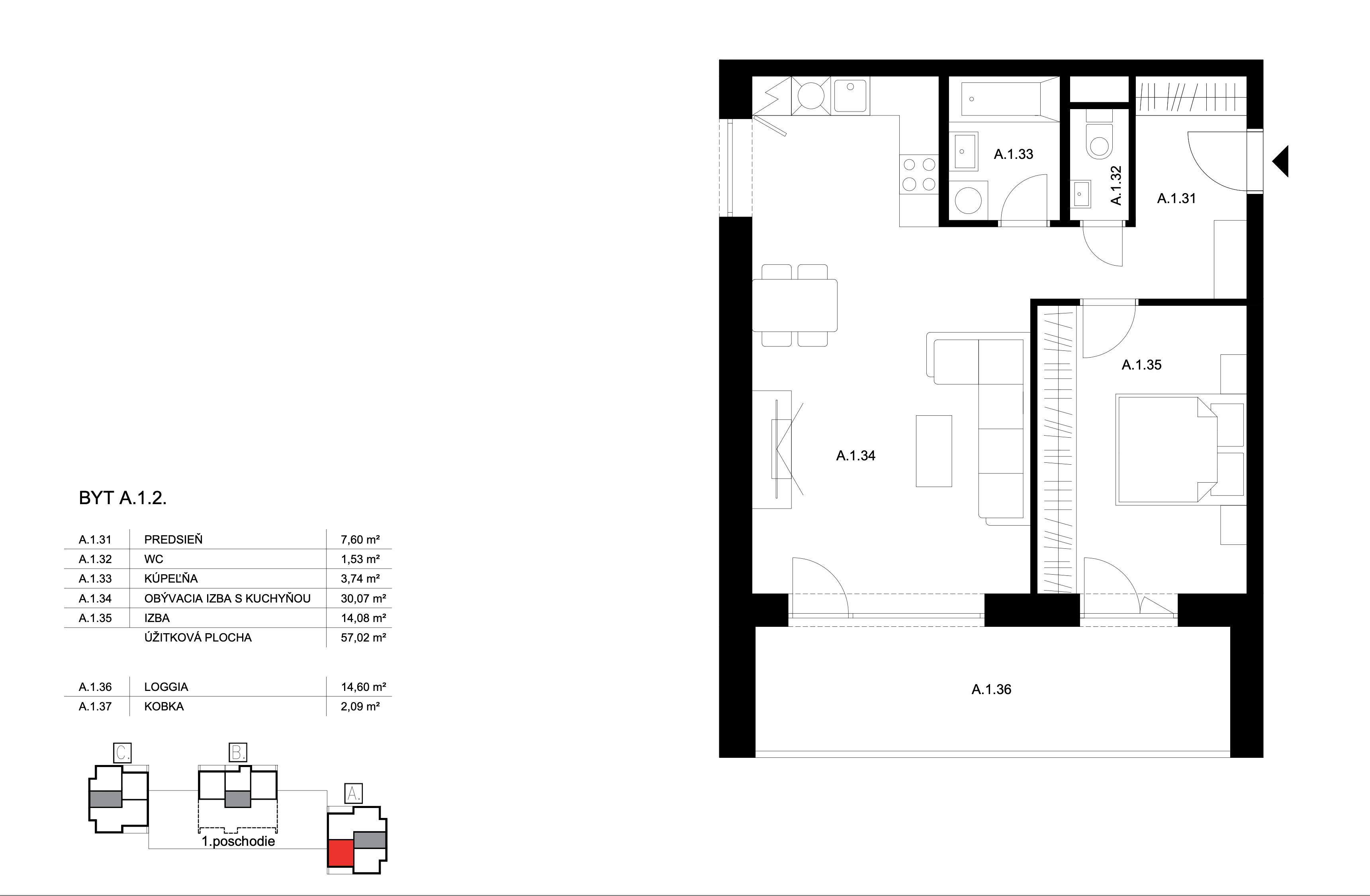
byt:
Budova:
A
Projekt:
Mesto / Obec:
Typ:
2-izbový byt
Poschodie:
1.NP
Rozloha:
57.02 m²
Cena:
212 077 €
Dostupnosť:
voľný
Bell Residence - A.1.2 - Pôdorys
zdroj: https://bellresidence.sk/byt?flat=A-1-2