flatscraper - logo
Kaštieľ Bocian
Kaštieľ Bocian - map
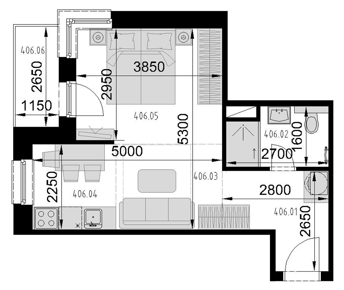
byt:
406
Projekt:
Mesto / Obec:
Typ:
1-izbový byt
Rozloha:
38.25 m²
Cena:
164 955 €
Dostupnosť:
voľný
Kaštieľ Bocian - 406 - Pôdorys
zdroj: https://kastielbocian.sk/apartman/406/