flatscraper - logo
Kaštieľ Bocian
Kaštieľ Bocian - map
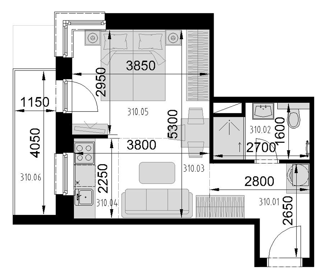
byt:
310
Projekt:
Mesto / Obec:
Typ:
1-izbový byt
Rozloha:
37.15 m²
Cena:
152 765 €
Dostupnosť:
voľný
Kaštieľ Bocian - 310 - Pôdorys
zdroj: https://kastielbocian.sk/apartman/310/