flatscraper - logo
Galandov majer
Galandov majer - map
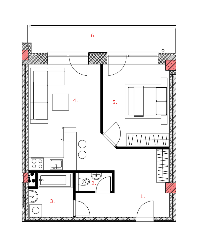
byt:
Projekt:
Mesto / Obec:
Typ:
2-izbový byt
Poschodie:
3.NP
Rozloha:
57.96 m²
Cena:
124 400 €
Dostupnosť:
voľný
Galandov majer - V31.3.2 - Pôdorys
zdroj: https://galandovmajer.sk/byt/v31-3-2/