flatscraper - logo
Sky Park
Sky Park - map
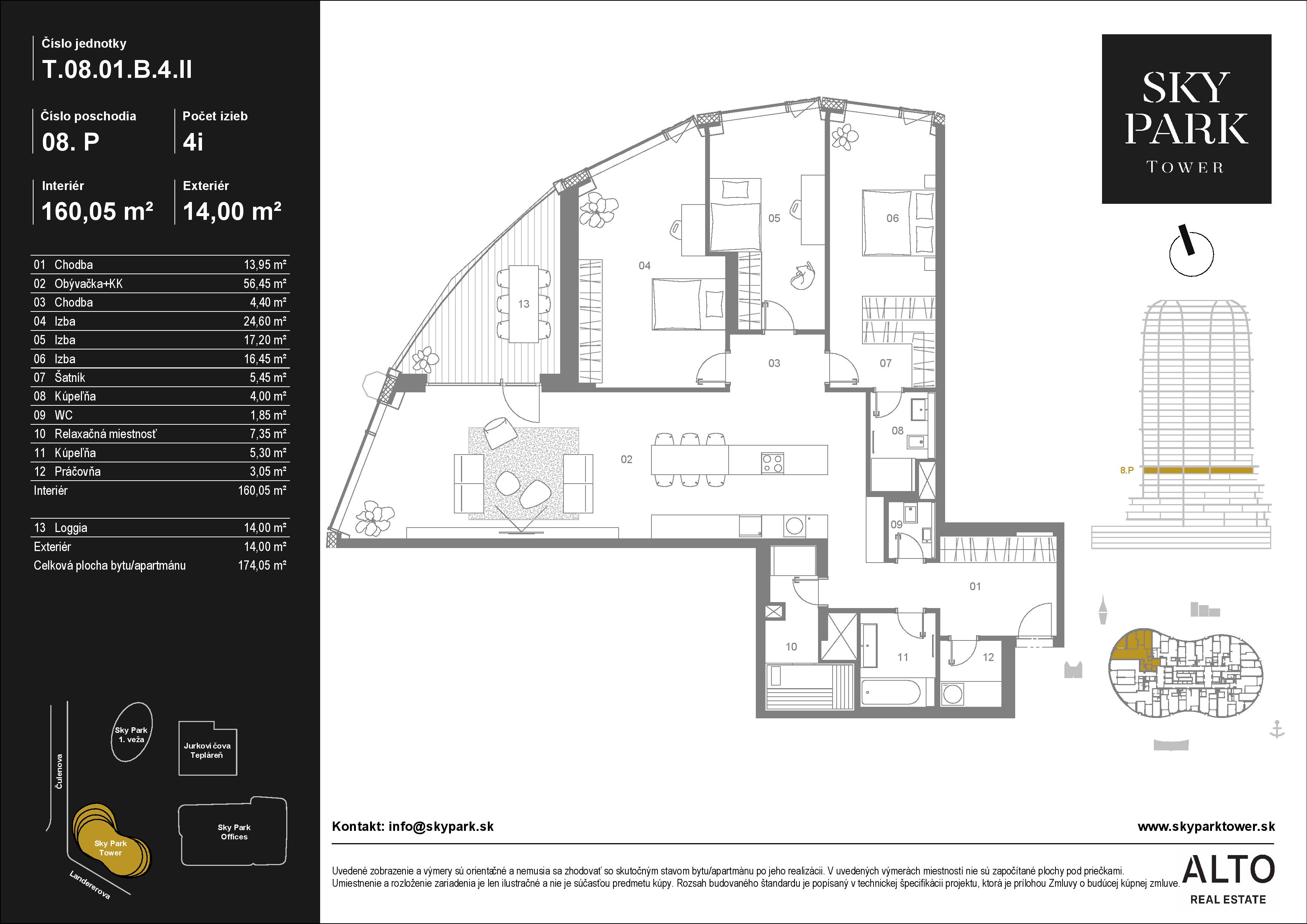
byt:
Budova:
Sky Park Tower
Projekt:
Mesto / Obec:
Typ:
4-izbový byt
Poschodie:
8.NP
Rozloha:
160.05 m²
Exteriér:
14 m²
Cena:
-
Dostupnosť:
voľný
Kontakt:
Sky Park - T.08.01 - Pôdorys
zdroj: https://www.skyparktower.sk/apartment/T.08.01/