flatscraper - logo
Nový Ružinov
Nový Ružinov - map
byt:
Budova:
Miranda B
Projekt:
Mesto / Obec:
Typ:
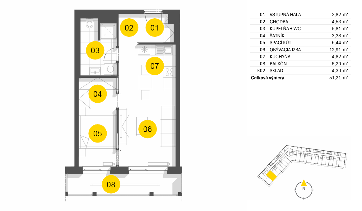
1.5-izbový byt
Poschodie:
5.NP
Rozloha:
45.01 m²
Exteriér:
6.2 m²
Cena:
215 619 €
Dostupnosť:
voľný
Nový Ružinov - C1.6.02 - Pôdorys
zdroj: https://www.novyruzinov.sk/cennik/34061806