flatscraper - logo
Green Atrium
Green Atrium - map
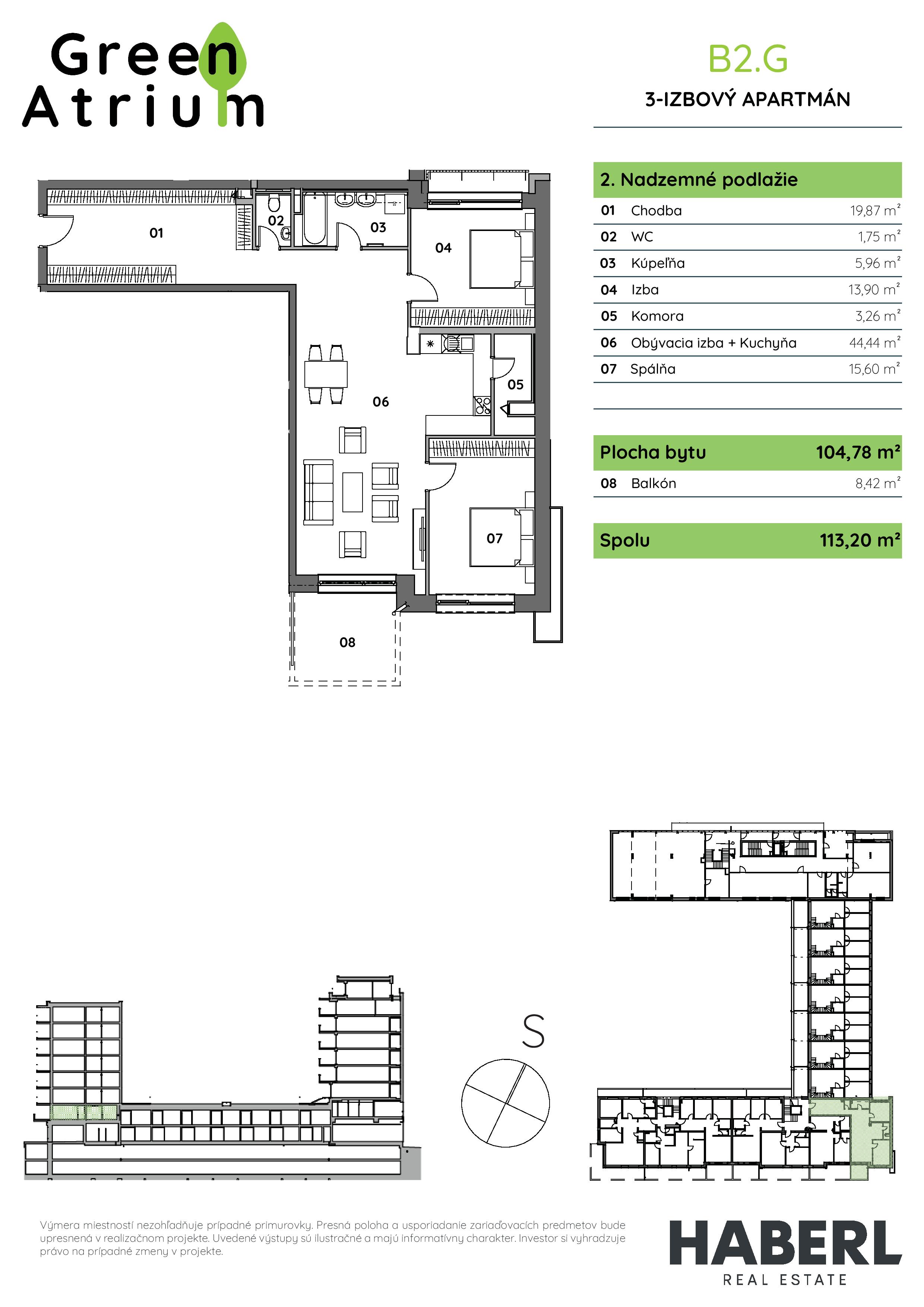
byt:
2G
Budova:
B
Projekt:
Mesto / Obec:
Typ:
3-izbový byt
Poschodie:
2.NP
Rozloha:
104.78 m²
Exteriér:
8.42 m²
Cena:
557 300 €
Dostupnosť:
voľný
Green Atrium - 2G - Pôdorys
zdroj: https://www.bytygreenatrium.sk/flat/b2g/