flatscraper - logo
Danubius
Danubius - map
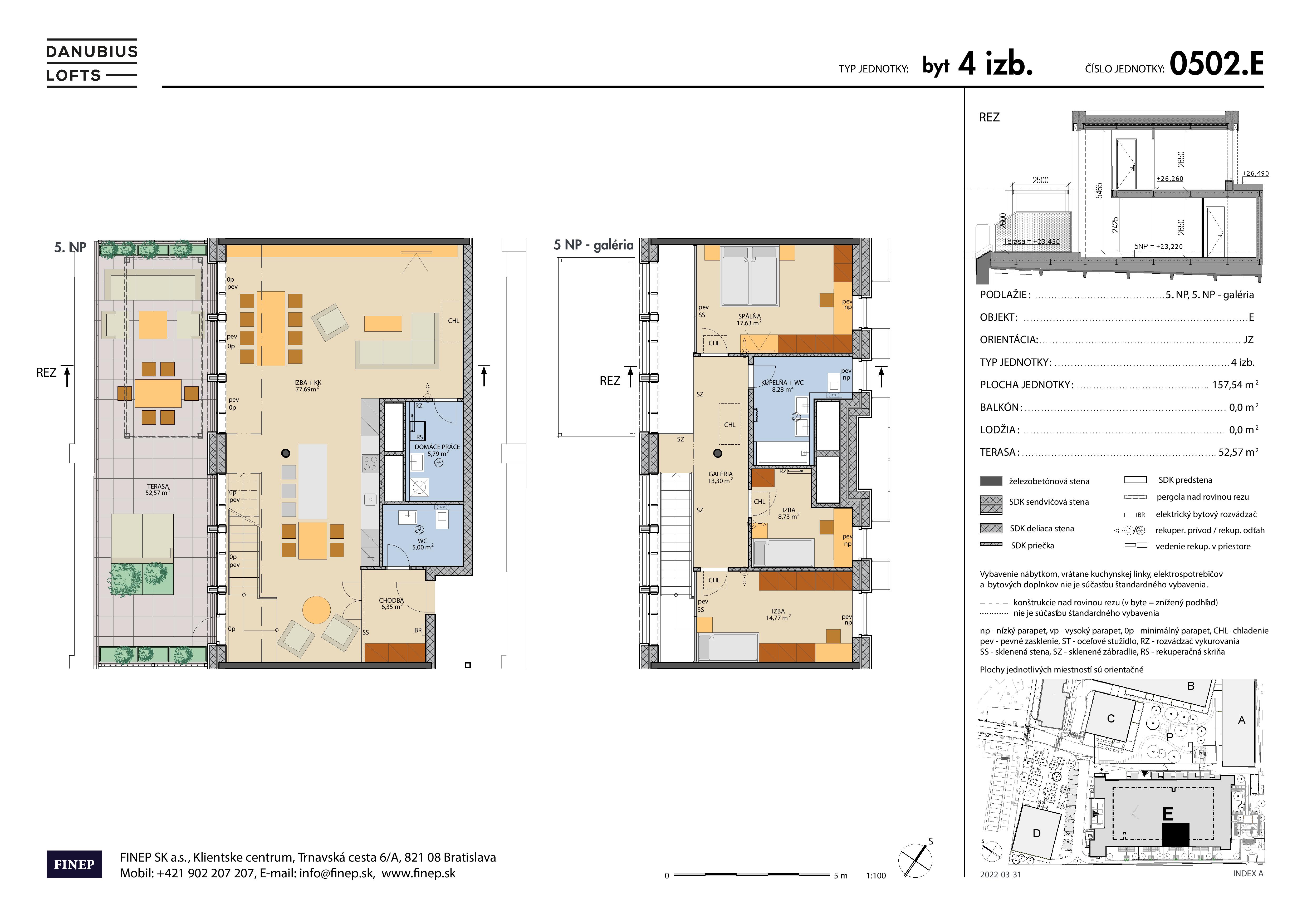
byt:
Budova:
Danubius Lofts
Projekt:
Mesto / Obec:
Typ:
4-izbový byt
Poschodie:
5.NP
Rozloha:
157.5 m²
Terasa:
52.6 m²
Cena:
953 768 €
Dostupnosť:
voľný
Kontakt:
Danubius - 0502.E - Pôdorys
zdroj: https://www.finep.sk/sk/danubius-lofts/byt-0502-e?backlink=9a4f3ce3