flatscraper - logo
Danubius
Danubius - map
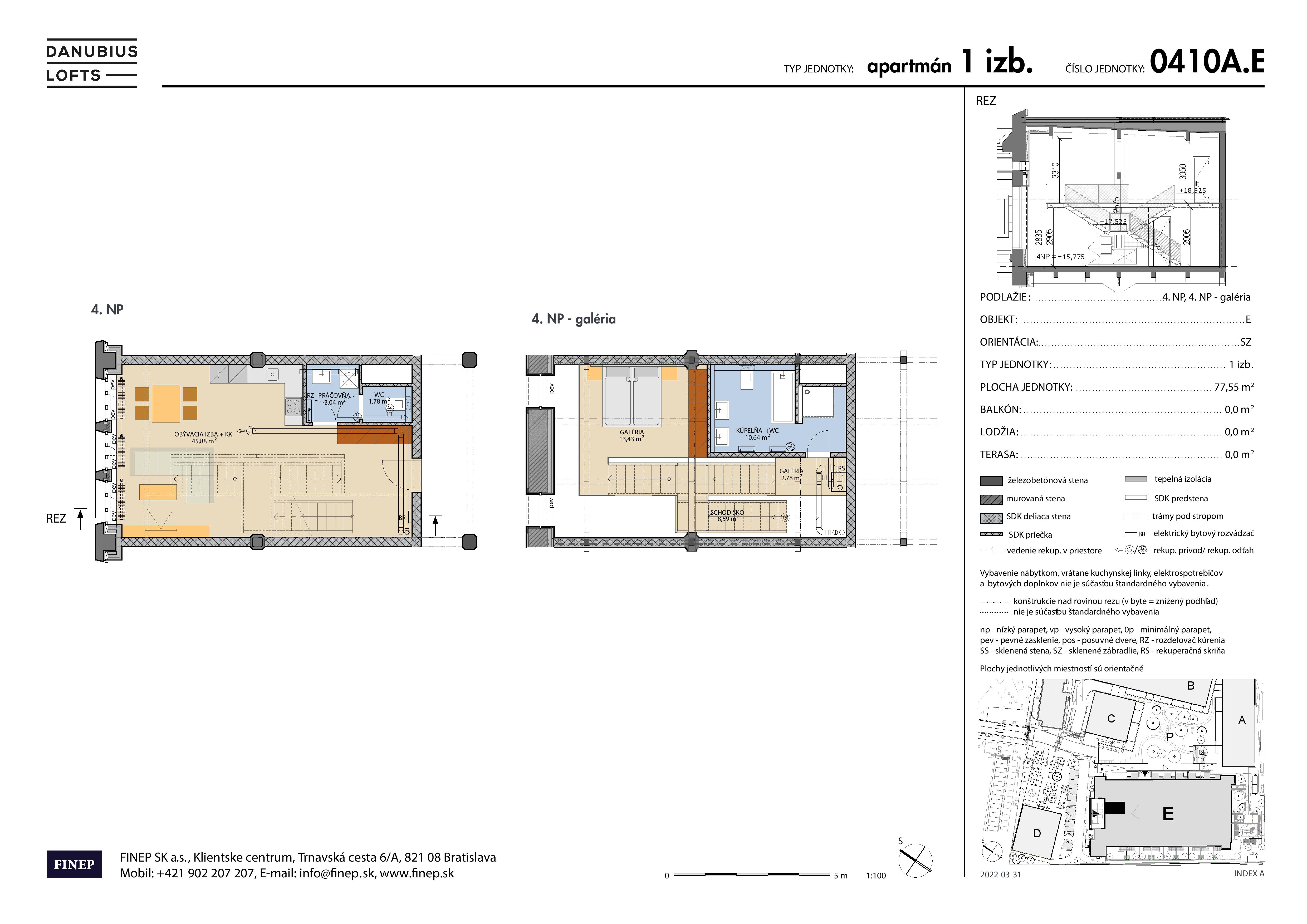
byt:
Budova:
Danubius Lofts
Projekt:
Mesto / Obec:
Typ:
1-izbový byt
Poschodie:
4.NP
Rozloha:
77.6 m²
Cena:
477 683 €
Dostupnosť:
voľný
Kontakt:
Danubius - 0410A.E - Pôdorys
zdroj: https://www.finep.sk/sk/danubius-lofts/apartman-0410a-e?backlink=90a96337